Bifamiliare in vendita

Villar Dora, Via Al Cerrone
€ 395.000
7 locali 7 locali
265 Mq 265 Mq
4 bagni 4 bagni

Bifamiliare in vendita

Villar Dora, Via Al Cerrone

Descrizione annuncio

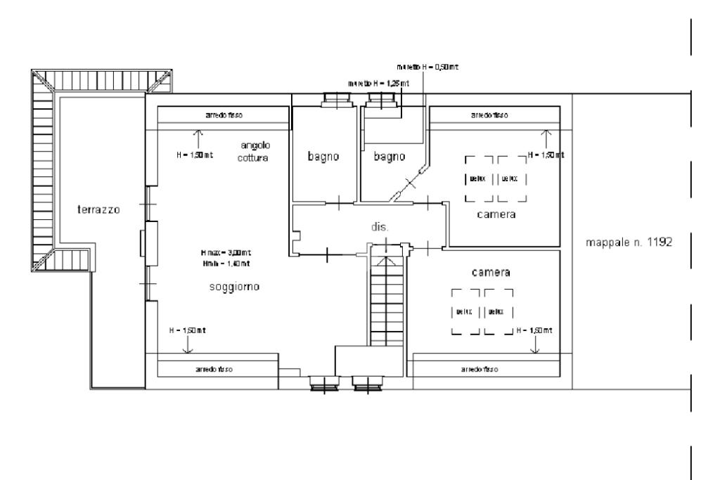
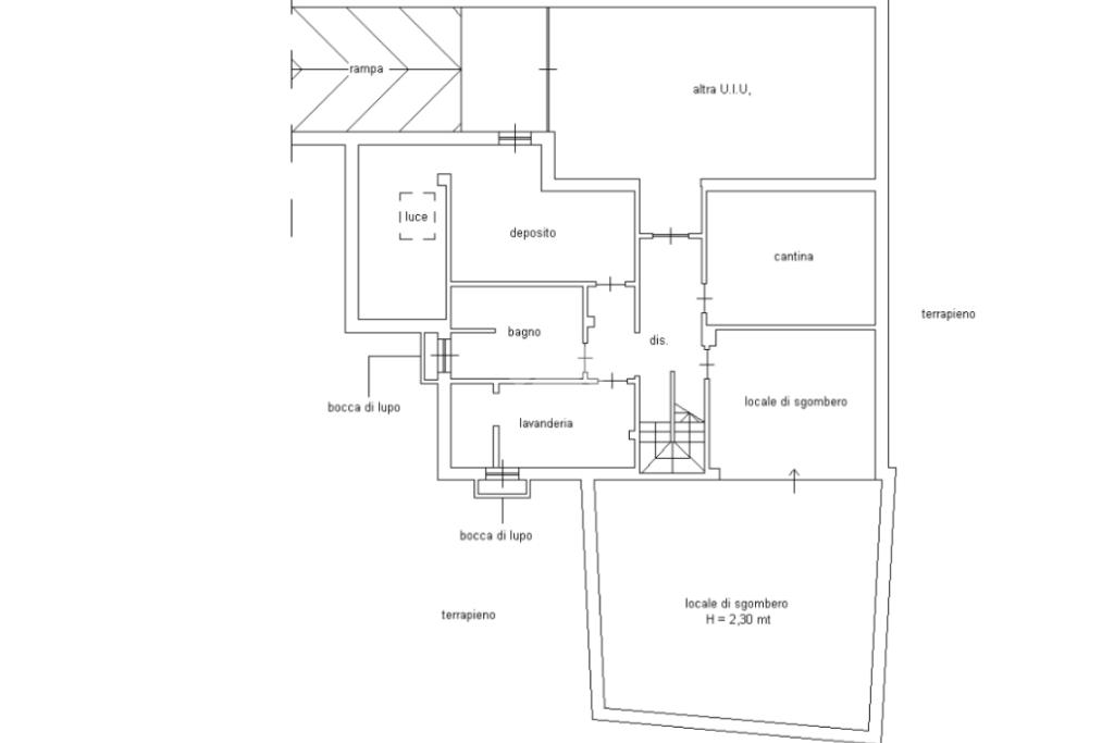
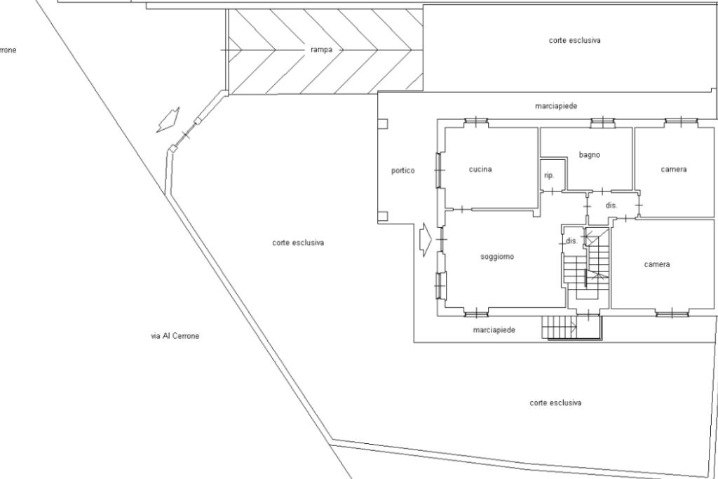
Villar Dora, in centro paese, villa bifamiliare libera su tre lati che grazie alla divisione ottimale dei due piani abitativi è predisposta anche per essere vissuta come monofamiliare. L’ingresso al piano terra, tramite porticato, si apre sul luminoso soggiorno, da cui si accede alla cucina abitabile con uscita diretta sull’area esterna. Il disimpegno divide perfettamente gli ambienti e permette l’accesso al bagno completo di vasca e doccia e alle due camere da letto entrambe molto spaziose. Conclude il piano il ripostiglio. L’appartamento al piano primo è accessibile tramite vano scala, con doppio ingresso: esterno per garantire privacy e indipendenza oppure da disimpegno interno all’appartamento al piano terreno se utilizzata come monofamiliare. Al piano primo mansardato si sviluppa il secondo appartamento, che grazie al recente intervento di ristrutturazione a nuovo presenta uno stile moderno e curato in ogni zona giorno presenta un ambiente unico con soggiorno e cucina a vista con uscita diretta sul terrazzo di generose dimensioni e con esposizione verso sud. Il bagno completo di doccia è accessibile tramite disimpegno, la zona notte invece è composta da due camere da letto, di cui una con bagno en suite. L’appartamento è dotato di svariati comfort abitativi, tra cui gli infissi di ultima generazione con oscuranti integrati in vetrocamera, climatizzatori, lucernai Velux automatici con radiocomando e zanzariere. Al piano interrato sono presenti i locali di lavanderia, bagno completo di doccia, locale deposito, una cantina, la tavernetta di ampie dimensioni e l’autorimessa con tre posti auto direttamente collegata all’abitazione, dotata di cancello e basculante automatico. Completa la proprietà il giardino sui tre lati, pianeggiante e in parte terrazzato. Ogni agenzia ha un proprio titolare ed è autonoma. - Le presenti informazioni non costituiscono elemento contrattuale.
Mostra tutto

Nelle vicinanze

Trasporto pubblico Trasporto pubblico
Sant'Ambrogio
Sant'Ambrogio
2,2 Km
Villardora (v. S.Ambrogio 63)
Villardora (v. S.Ambrogio 63)
130 m
Villardora (Banca S.Paolo)
Villardora (Banca S.Paolo)
580 m
Ricariche auto elettriche Ricariche auto elettriche
Villar Dora AVIS | EnelX
250 m
Centro comunale polivalente Villar Dora | EnelX
440 m
Villar Dora Resistenza | EnelX
770 m
EnelX EVA+ Sant'Ambrogio di Torino
2,2 Km
CF Autoservice | e-Station
2,6 Km
Scuole Scuole
Scuole
510 m
Scuola Primaria Nino Costa
2,3 Km
Farmacia Farmacia
Farmacia
270 m
Farmacia Vela
2,7 Km
Supermercati Supermercati
CRAI Villardora
580 m
Crai
970 m
Negozi Negozi
Xeriline 2 Serigrafia Digitale
120 m
Carrefour Express
750 m
Negozi
2,3 Km
Eurospin
2,4 Km
Bar Bar
Bar Tabaccheria Martina
2,1 Km
Colorado
2,1 Km
Habana
2,1 Km
Bar
2,4 Km
Elysée
3,0 Km
Ristoranti Ristoranti
Spaghetti House
2,0 Km
Totò e Macario
2,1 Km
Pummarò
2,3 Km
Al Prà
2,7 Km
Ristoranti
2,7 Km
Mostra tutto

Caratteristiche

Rif.:
61157947
Piano:
Su più livelli di 3
Totale piani:
3
Box:
3
Posti auto:
1
Balconi:
1
Mostra tutto
Prezzo Prezzo
€ 395.000
Rata mutuo Rata mutuo
€ 1.861 / mese
Spese annue Spese annue
€ 0
Proponi il tuo prezzoProponi il tuo prezzo

Classe Energetica

B
B
B
B
B
B
B
B
B
EP globale non rinnovabile:
71.88 kW h/m² anno
EP globale rinnovabile:
0.97 kW h/m² anno
EP invernale del fabbricato:
EP estiva del fabbricato:
Anno di costruzione:
2000
Riscaldamento:
Autonomo
Tipo impianto:
A radiatori
Tipo alimentazione:
Metano

Ti interessa visionare l'immobile?

Fissa un appuntamento  Fissa un appuntamento

Richiedi informazioni

Clicca su Leggi per aprire l'informativa
* Questi campi sono obbligatori

Calcola il tuo mutuo

Semplice e senza impegno
Anticipo

( % )
Mutuo

( % )

pochi semplici passi

inserisci i tuoi dati
Questionario completato
Grazie per aver richiesto un appuntamento senza impegno con un nostro Consulente del Credito e Assicurativo.

Hai inserito correttamente tutti i dati necessari e a breve riceverai una e-mail con un link da convalidare per inviare i tuoi dati.
Affiliato
Studio Almese Srl
Via Avigliana, 12 10040 Almese (TO)

Il nostro staff


  • Andrea Crisafi
    Affiliato

  • Cristina Marin
    Coordinatrice

  • Matteo Richetto
    Affiliato

  • Silvio Rinaldi
    Affiliato
Via Avigliana, 12 10040 Almese (TO)
Zona: Almese-Villar Dora-Rubiana
Mostra su mappa
Orari: da Lunedì a Venerdì dalle ore 9:00 alle 12:30 e dalle 15:00 alle 20:00. Sabato chiusura alle 19:00
Affiliato
Studio Almese Srl
Via Avigliana, 12 10040 Almese (TO)

2026 Tecnocasa Franchising S.p.A. - P. IVA 08365160152 - Via Monte Bianco 60/A 20089 Rozzano (MI). Ogni agenzia ha un proprio titolare ed è autonoma. Privacy policy | Policy utilizzo | Cookie policy